Sun Microsystems, Inc.   Oracle System Handbook - ISO 7.0 May 2018 Internal/Partner Edition
   Home | Current Systems | Former STK Products | EOL Systems | Components | General Info | Search | Feedback



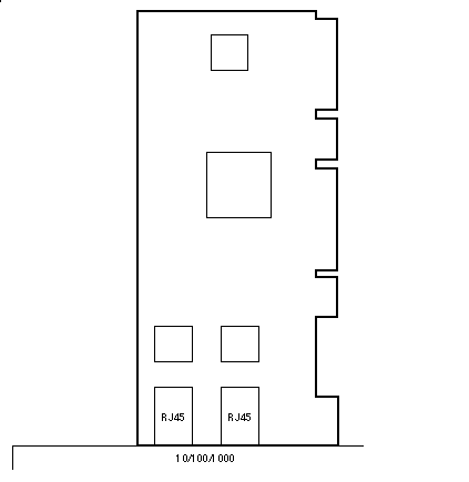
Dual Gigabit Ethernet

Option 9272
Option XTA5000-NC2-1G-Z

370-6687 371-2289
Intel PRO/1000MT
Product Code PWLA8492MT
3.3/5V   32/64Bit   PCI/PCI-X
33/66/100/133MHz

V20z/V40z: X9272A
5310/5220/5320:
XTA5000-NC2-1G-Z
Intel PRO/1000MT
Product Code PWLA8492MT
3.3/5V   32/64Bit   PCI/PCI-X
33/66/100/133MHz

5310/5220/5320:
XTA5000-NC2-1G-Z

Notes

  1. XTA5000-NC2-1G-Z Rev 50 shipped with 370-6687 from 06-MAR-06 to 02-AUG-06.
  2. XTA5000-NC2-1G-Z Rev 51 ships with 371-2289 beginning 02-AUG-06.



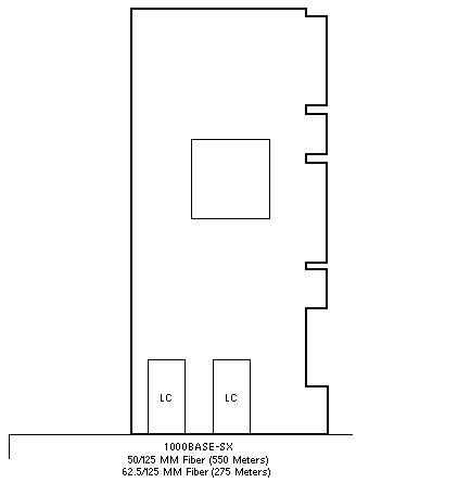
Dual Gigabit Ethernet

Option 7285

371-0911
Intel PRO/1000GT
Product Code 3710911/PBA D37245-002
3.3/5V   32/64Bit   PCI/PCI-X
33/66/100/133MHz

Additional Information & Views

Notes

  1. X7285A uses the e1000g device driver.
  2. The minimum Solaris x86 operating system is Solaris 9.
  3. The minimum Solaris SPARC operating system is Solaris 10.



Dual Gigabit Ethernet

Option XTA5000-NF2-1G
Option XTA5000-NF2-1G-Z

375-3250
Intel PRO/1000MF
Product Code PWLA8492MF
3.3/5V   32/64Bit   PCI/PCI-X
33/66/100/133MHz
5210/5310/5220/5320NAS


  Copyright © 2018 Oracle and/or its affiliates.  All rights reserved.
 Feedback