Sun Microsystems, Inc.   Oracle System Handbook - ISO 7.0 May 2018 Internal/Partner Edition
   Home | Current Systems | Former STK Products | EOL Systems | Components | General Info | Search | Feedback



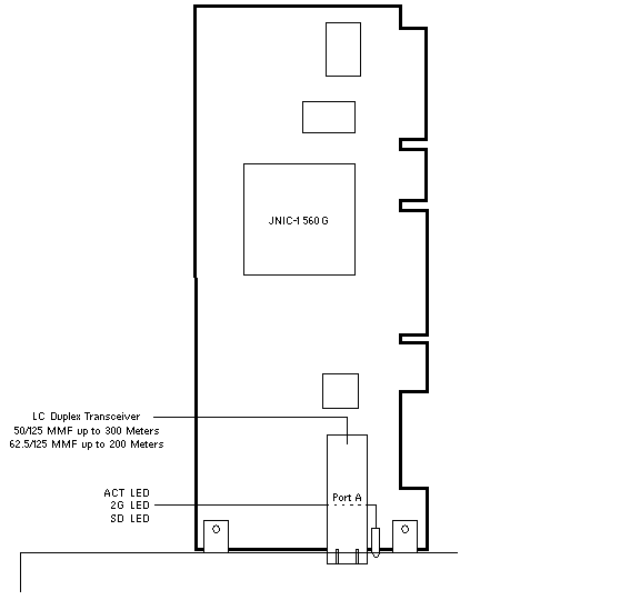
2Gigabit/Sec Single FC Host Adapter (JNI)

Codename: Amber2J

Option SG-XPCI1FC-JF2

375-3156
JNI FCX-6562-L PCI/PCI-X
3.3/5V   32/64Bit   33/66/100/133MHz

Additional Information & Views

.4 Meter LC-SC Cable 537-1036, Option 9721
2 Meter LC-SC Cable 537-1035, Option 9722
5 Meter LC-SC Cable 537-1033, Option 9723
15 Meter LC-SC Cable 537-1034, Option 9724
.8 Meter LC-LC Cable 537-1057, Option 9730
2 Meter LC-LC Cable 537-1041, Option 9732
5 Meter LC-LC Cable 537-1042, Option 9733
15 Meter LC-LC Cable 537-1043, Option 9734

Notes

  1. Solaris 8 04/01 and Solaris 9 are supported.
  2. Firmware Information.
  3. 5-Volt hsPCI and hsPCI+ slots on Sun Fire 12K/15K or E20K/25K require patch 117772-03.

References

  1. Sun StorageTek 2 Gb Fibre Channel JNI PCI HBA, Dual Port Documentation.

  Copyright © 2018 Oracle and/or its affiliates.  All rights reserved.
 Feedback